AUBANGE : TERRAIN AVEC PERMIS LIBRE DE CONSTRUCTEUR
Description
PROJET DE CONSTRUCTION – MAISON D’INSPIRATION ARCHITECTURALE MODERNE 4 CHAMBRES AVEC GARAGE TRAVERSANT – PERMIS ACCORDÉ
Alison IMMO vous propose ce superbe projet de maison unifamiliale contemporaine, pensé pour offrir confort, luminosité et fonctionnalité dans un cadre résidentiel agréable.
Implantée sur une belle parcelle de 7 ares 51, cette future construction séduit par :
· ses volumes bien proportionnés
· son agencement intelligent et sa grande pièce de vie ouverte regroupant salon, salle à manger et cuisine de ± 51,50 m²
–> idéale pour les moments en famille ou entre amis
Projet personnalisable selon vos envies (matériaux, finitions, équipements)
Architecture moderne et lignes épurées
Excellente performance énergétique visée
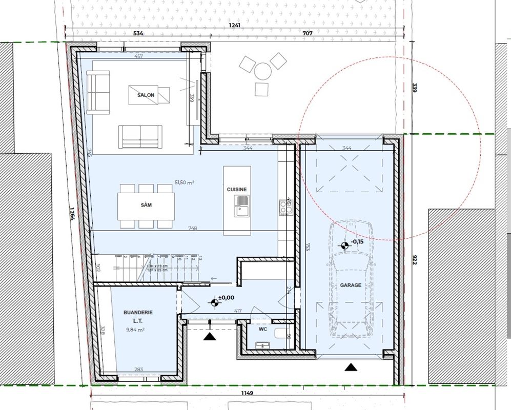
Rez-de-chaussée :
Hall d’entrée et circulation 7,42 m²
Spacieux séjour / salle à manger / cuisine ouverte ± 51,50 m² avec accès terrasse et jardin orienté SUD- OUEST !
Buanderie / local technique 9,8 m²
WC séparé 1,44 m²
Garage 1 voiture traversant de 25,90 m²
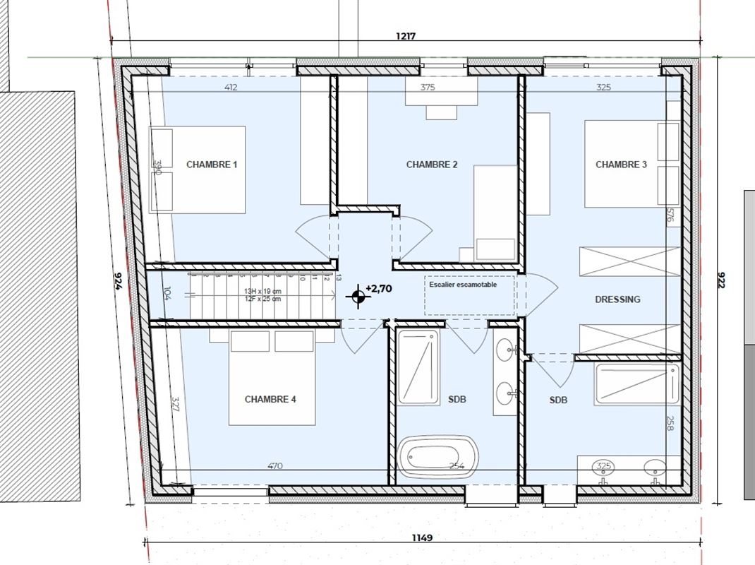
Étage :
Hall de nuit ± 8,06 m²
Chambre 1 ± 15 m²
Chambre 2 ± 13 m²
Chambre 3 avec dressing et salle de bain privative 18,72 m² + 8,38 m²
Chambre 4 ± 15 m²
Salle de bains familiale ± 8,3 m²
Surfaces indicatives :
Rez : ± 70 m² + garage
Étage : ± 86 m²
Combles aménageables : ± 40 m²
Parfait pour une famille à la recherche d’espace, de modernité et de qualité de construction.
LIBRE DE CONSTRUCTEUR !
Infos & plans : 0499 426 425
info@alisonimmo.be
Les informations fournies par l’agence ont un caractère indicatif et non contractuel.
Général
-
ID:761
-
Etat du bien:Non communiqué
-
Surface du terrain:751 m2
-
Garage(s):1
-
Park. ext.:4
-
Nombre de façade:Non communiqué
-
Toit:Non communiqué
-
Cuisine:Non communiqué











