ATHUS : PROJET DE 3 APPARTEMENT 2 CHAMBRES + GRANDES TERRASSES
Description
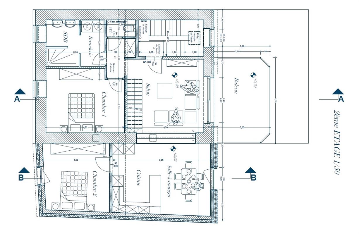
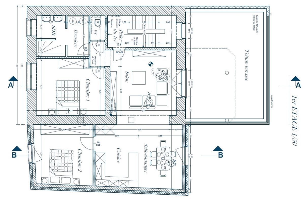
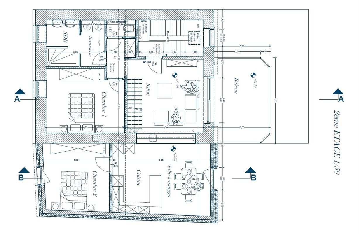
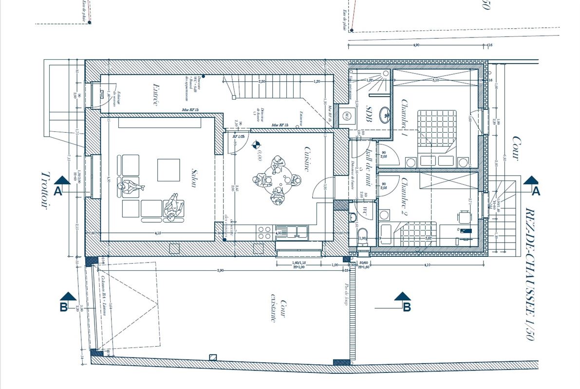
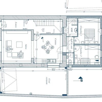
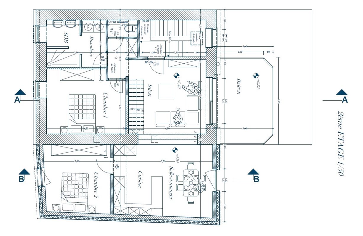
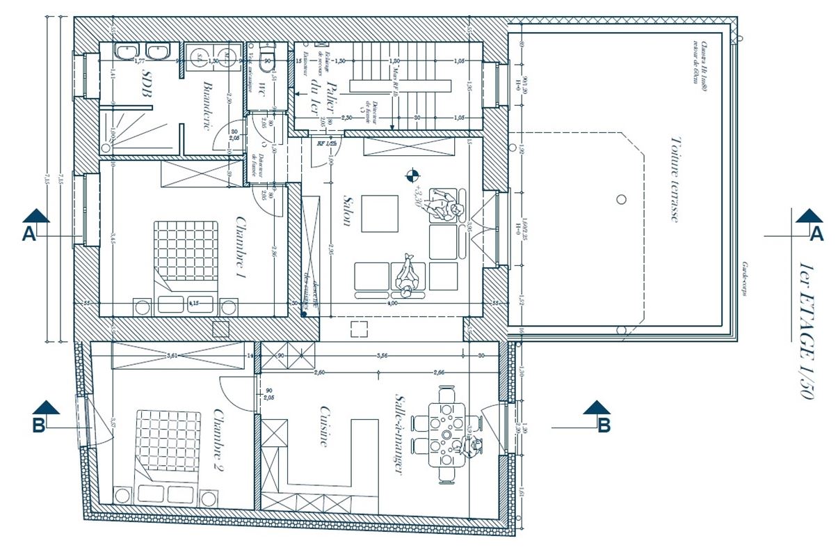
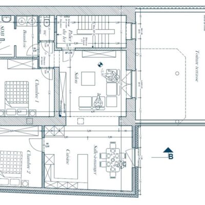
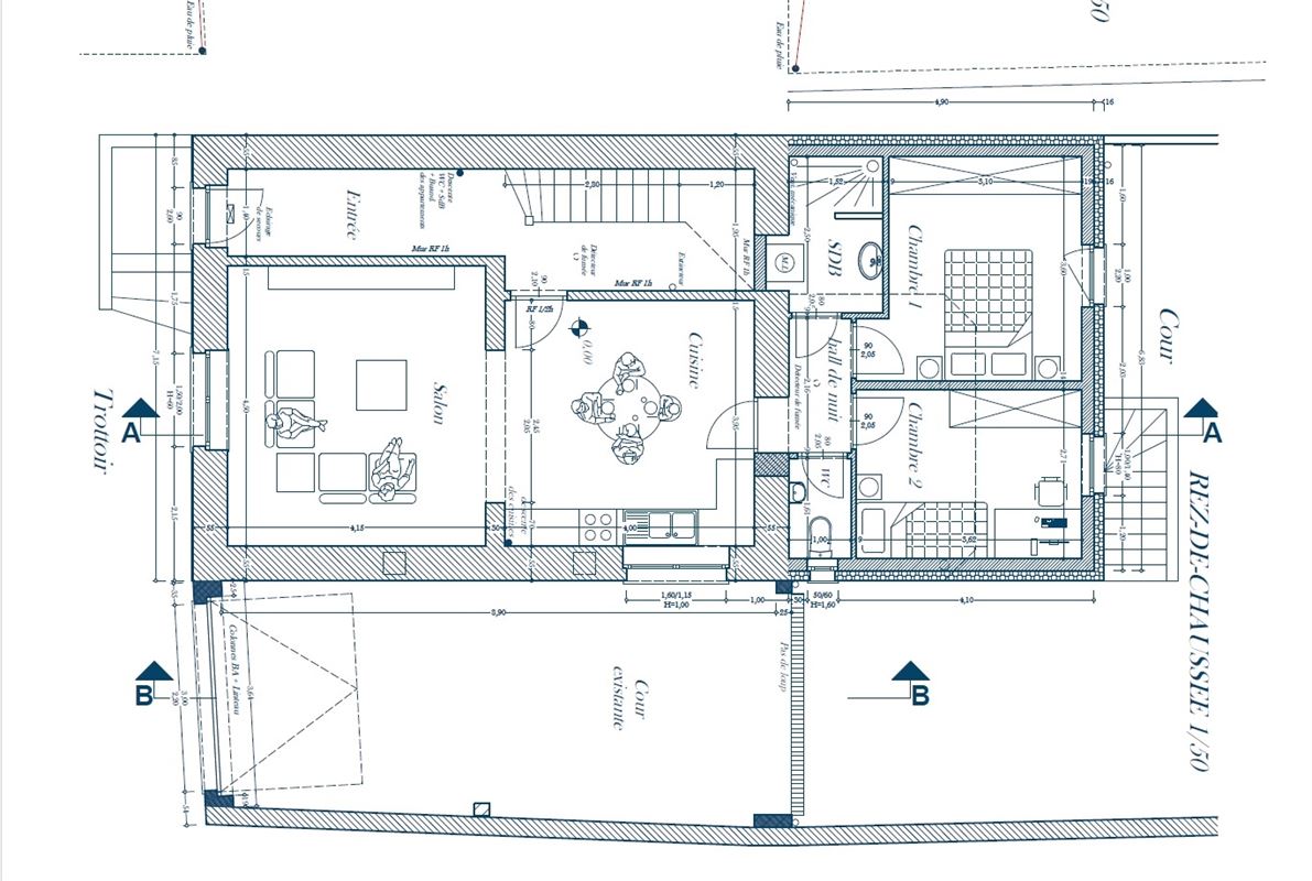
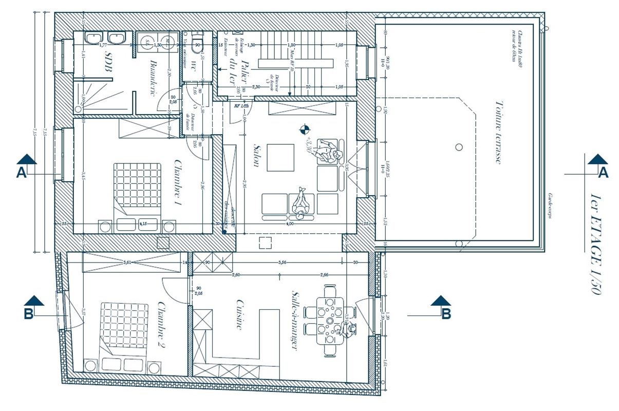
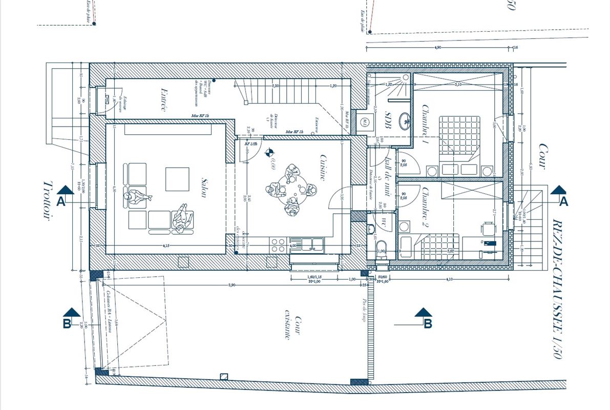
Projet de 3 appartements 2 CHAMBRES de 63,50 – 74 et 74 m², TOUS AVEC UNE TERRASSE dont le permis est périmé depuis 2020.
3 carports en plus des 3 parkings sont prévus sur l’arrière du bâtiment.
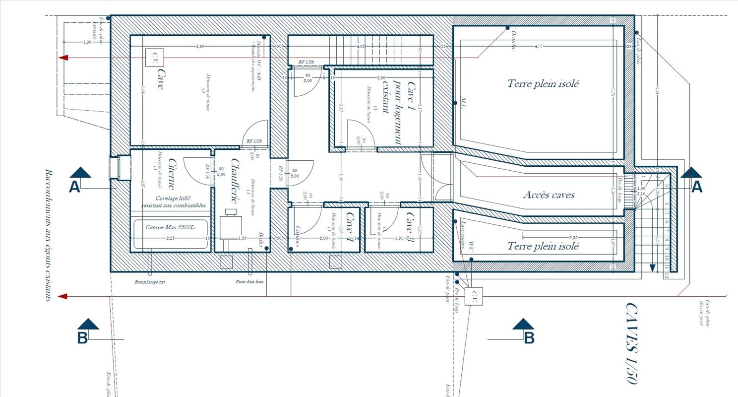
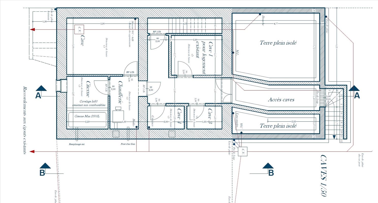
Au sous-sol : Caves et chaufferie.
Un nouveau permis est à demander. Le bien est actuellement en état de gros-œuvre fermé excepté le RDC.
Ci-dessous la liste des travaux déjà réalisés :
– Dalles de béton,
– Murs intérieurs de séparation,
– Façade arrière et avant isolante, (couleur rouge à modifier)
– Le passage de tuyaux pour le chauffage est déjà bien avancé,
– Actuellement 1 chaudière au gaz pour le Rez,
– Les terrasses en béton,
– Les châssis double vitrage en PVC,
– Toit ardoises naturelles,
Vous souhaitez investir seul ou à plusieurs ? N’hésitez pas à demander votre visite au 0499 426 425 ou via info@alisonimmo.be !
➡️ Envie d’être prévenu(e) avant tout le monde ? https://www.alisonimmo.be/tenez-moi-au-courant/
🏡 Vous souhaitez vendre ?
👉 Obtenez votre estimation gratuite ici : ➡️ https://www.alisonimmo.be/estimation/
💗 𝐀𝐥𝗶𝘀𝗼𝗻 𝗜𝗠𝗠𝗢 – 𝗘𝘁 𝗹’𝗶𝗺𝗺𝗼𝗯𝗶𝗹𝗶𝗲𝗿 𝘃𝗼𝘂𝘀 𝘀𝗼𝘂𝗿𝗶𝘁 ! 😊💗
Informations indicatives et non contractuelles.
Général
-
ID:513
-
Année de construction:1949
-
Etat du bien:A restaurer
-
Revenu cadastral:1016 €
-
Surface du terrain:1235 m2
-
Surface habitable:233 m2
-
Park. ext.:6
-
Nombre de façade:Non communiqué
-
Orientation arrière:Sud
-
Toit:A deux versants
-
Toit (matériaux):Ardoises naturelles
-
Vitrage:Double
-
Ch.:6
-
Salle(s) de douche:3
-
Toilette(s):3
-
Cave:1
-
Grenier:1
-
Cuisine:Pas présent
Intérieur
Energie
-
Classe énergétique:

-
Index énergétique:454 kWh/m²a
-
Consommation totale:587048 kWh/an
-
PEB Numéro:20231211010019
-
Electricité:Pas encore demandé(e)
-
Chauffage:Individuel
-
Type de chauffage:C.C. au gaz











